設計說明
本案室內采用的色調主要以黑、白、灰三色為主,體現現代、時尚的輕奢感;外觀用的黃金麻和真石漆的結合,既可以體現大氣又不失富貴,和周圍的建筑也可以更好的融合
項目簡介
本案用材方面大量應用了爵士白、銀白龍、古堡灰三色大理石,房門和地板的顏色采用了淺啡色飾面,窗簾和硬包的選擇也是以啡色和灰色來進行和硬裝的融合,這樣的組合讓整個空間在視覺上不會顯得太過冰冷,讓人既可以欣賞到黑白色三冷色帶來的輕度奢華又可以感受到軟裝帶給我們的“暖”。









來源:名匠裝飾 | 更新時間:2021-11-03
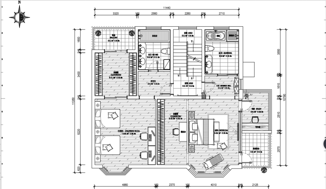
設計說明
本案室內采用的色調主要以黑、白、灰三色為主,體現現代、時尚的輕奢感;外觀用的黃金麻和真石漆的結合,既可以體現大氣又不失富貴,和周圍的建筑也可以更好的融合
項目簡介
本案用材方面大量應用了爵士白、銀白龍、古堡灰三色大理石,房門和地板的顏色采用了淺啡色飾面,窗簾和硬包的選擇也是以啡色和灰色來進行和硬裝的融合,這樣的組合讓整個空間在視覺上不會顯得太過冰冷,讓人既可以欣賞到黑白色三冷色帶來的輕度奢華又可以感受到軟裝帶給我們的“暖”。








