

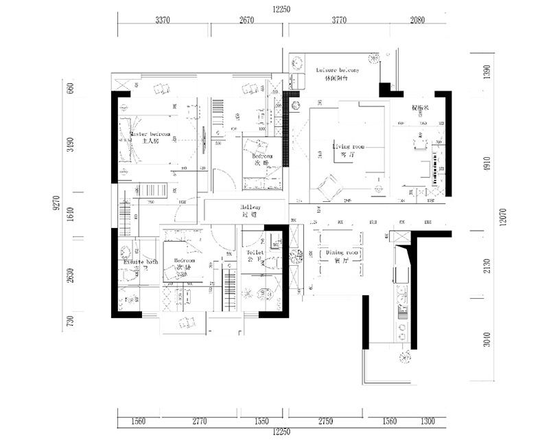
佛山龍湖春江名城三居歐式風格裝修效果圖

佛山龍湖春江名城三居歐式風格裝修效果圖

佛山龍湖春江名城三居歐式風格裝修效果圖
柳州101-200平米歐式風格東方名都室內裝修設計案例
歐式風格101-200平米五居室
惠州101-200平米歐式風格利和豪庭裝修設計效果圖
歐式風格101-200平米四居室
廣州301平米以上歐式風格世紀豪園裝修設計效果圖
歐式風格301平米以上別墅
廣州101-200平米歐式風格寶峰春天裝修設計案例
歐式風格101-200平米四居室
景德鎮101-200平米歐式風格嘉禾室內設計效果圖
歐式風格101-200平米三居室
嘉興201-300平米歐式風格盛世香堡家裝設計效果圖
歐式風格201-300平米別墅
廣州101-200平米歐式風格室內設計效果圖
歐式風格101-200平米三居室
佛山100平米以下歐式風格順景花園裝修設計案例
歐式風格100平米以下三居室