

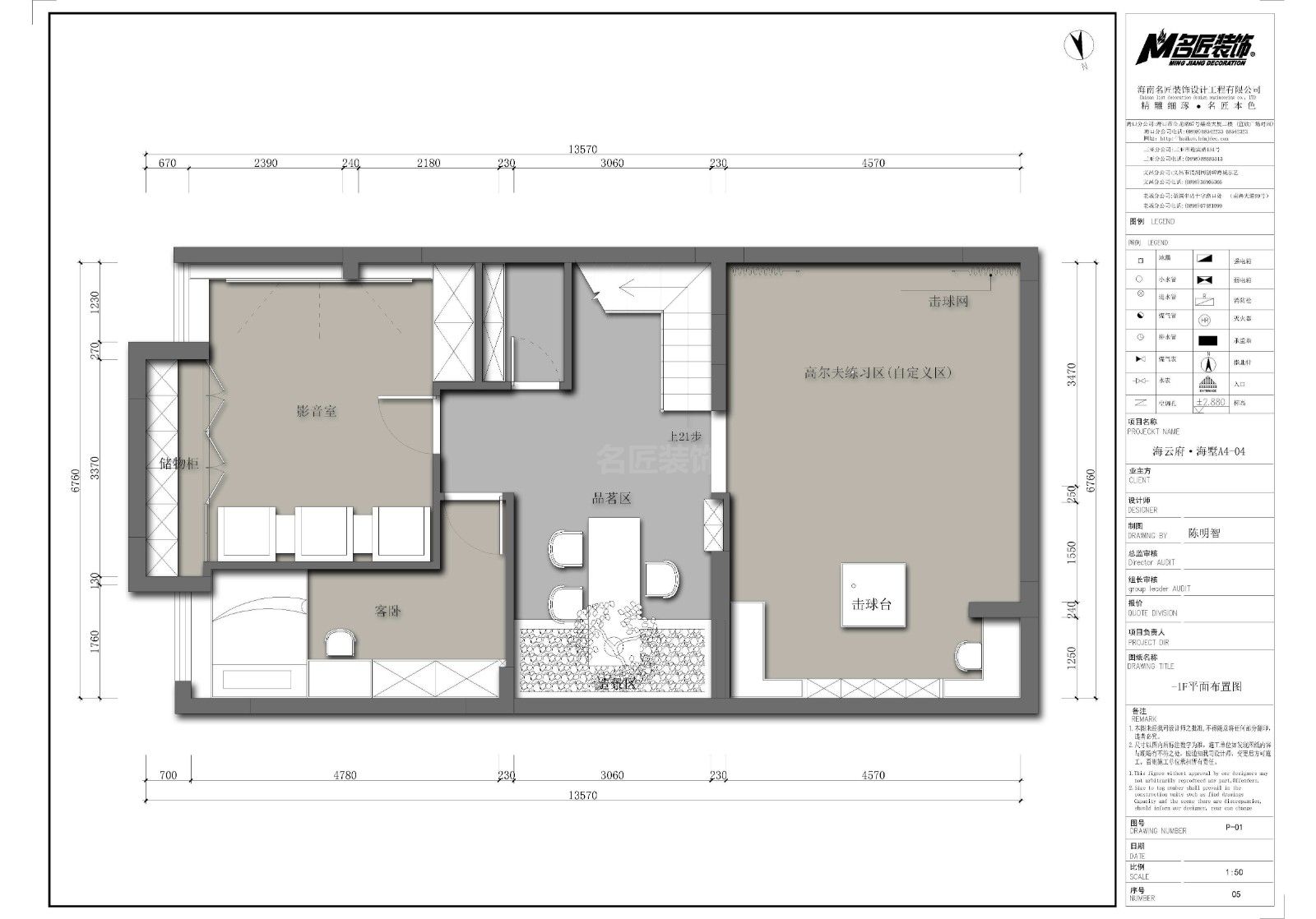
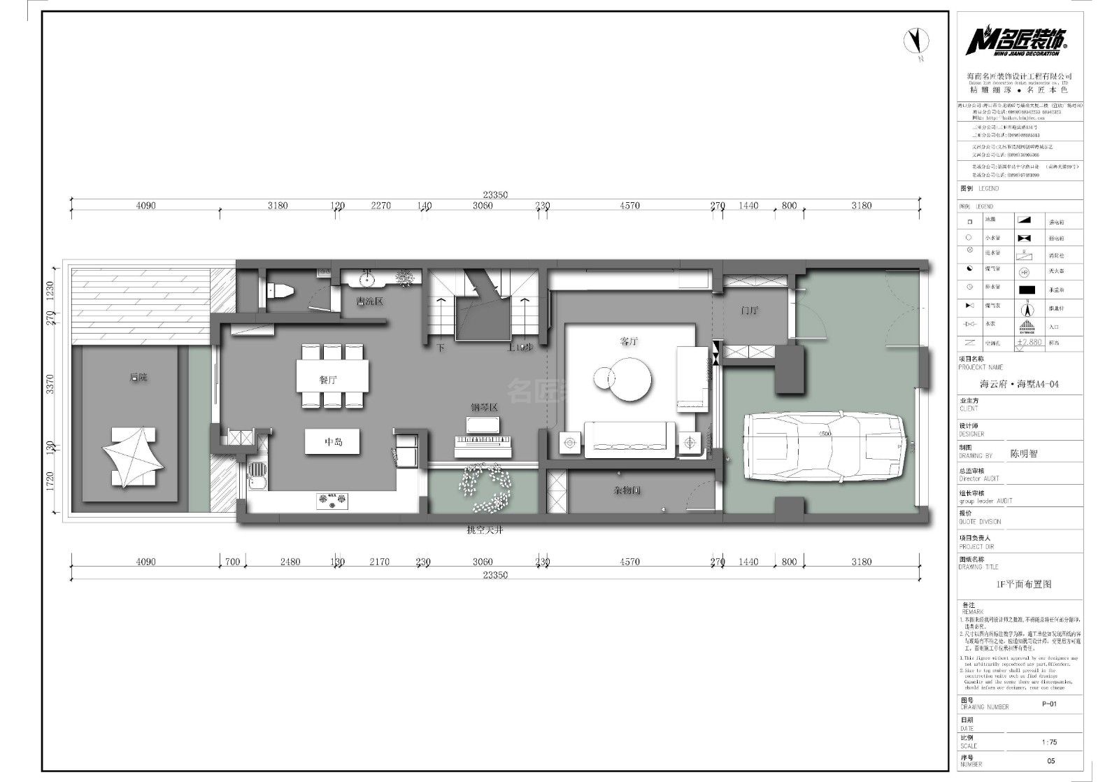
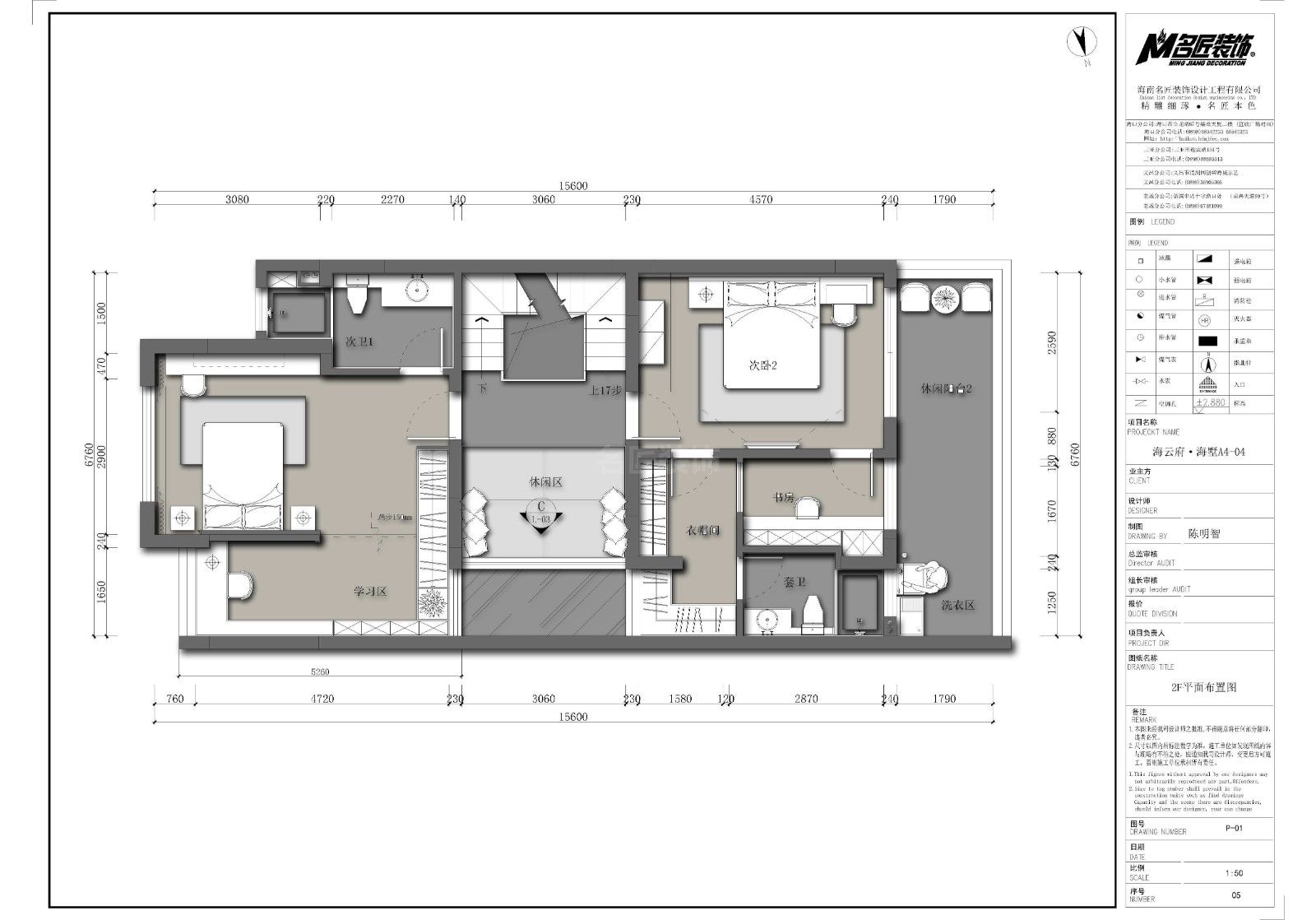
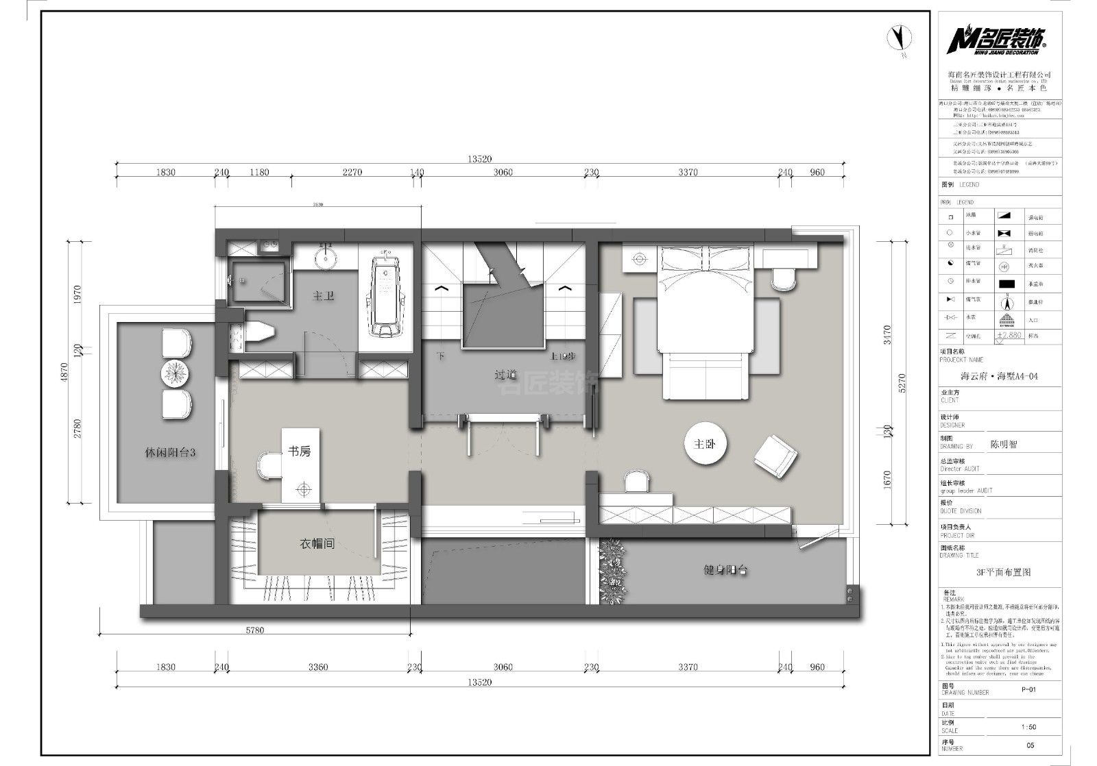
海口海云府海墅別墅現代簡約風格裝修效果圖

海口海云府海墅別墅現代簡約風格裝修效果圖

海口海云府海墅別墅現代簡約風格裝修效果圖

海口海云府海墅別墅現代簡約風格裝修效果圖

海口海云府海墅別墅現代簡約風格裝修效果圖

海口海云府海墅別墅現代簡約風格裝修效果圖

海口海云府海墅別墅現代簡約風格裝修效果圖

海口海云府海墅別墅現代簡約風格裝修效果圖

海口海云府海墅別墅現代簡約風格裝修效果圖

海口海云府海墅別墅現代簡約風格裝修效果圖

海口海云府海墅別墅現代簡約風格裝修效果圖

海口海云府海墅別墅現代簡約風格裝修效果圖

海口海云府海墅別墅現代簡約風格裝修效果圖
廣州101-200平米現代簡約風格三江雅苑裝修設計案例
現代簡約風格101-200平米三居室
江門101-200平米現代簡約風格海倫時光家裝設計案例
現代簡約風格101-200平米三居室
江門101-200平米現代簡約風格御濱名門家裝設計效果圖
現代簡約風格101-200平米三居室
廣州101-200平米現代簡約風格遠洋天祺家裝設計案例
現代簡約風格101-200平米四居室
廣州100平米以下現代簡約風格室內設計效果圖
現代簡約風格100平米以下二居室
柳州101-200平米現代簡約風格富灣國際裝修設計效果圖
現代簡約風格101-200平米四居室
廣州101-200平米現代簡約風格遠洋新天地室內設計效果圖
現代簡約風格101-200平米三居室
柳州101-200平米現代簡約風格君華新城室內設計效果圖
現代簡約風格101-200平米三居室